About this property
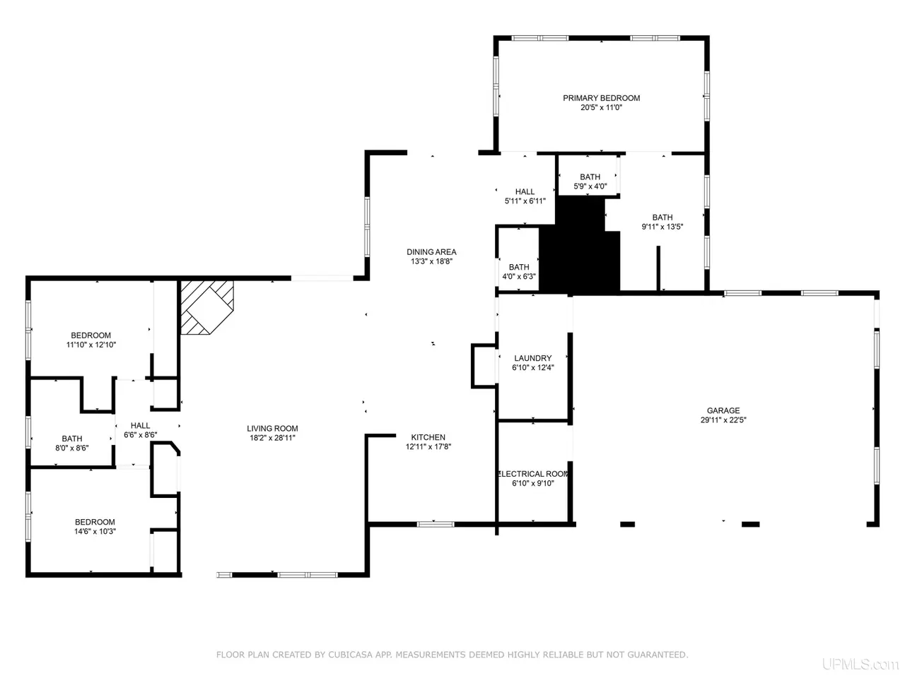
Secluded Cedar River Retreat Carney, Michigan Experience the perfect combination of craftsmanship, comfort, and natural beauty with this remarkable 35-acre riverfront estate. Offering approximately 1, 800 feet of pristine Cedar River frontage, this property provides tranquility, stunning views, and a true connection to the outdoors. This 3-bedroom, 2.5-bath home features top-of-the-line construction and thoughtful design throughout. The expansive open-concept main living area boasts a beautiful fireplace, heated floors, and 36-inch doors for easy accessibility. A large master ensuite occupies one end of the home, providing privacy from the two additional bedrooms located on the opposite end. The home is fully furnished and move-in ready, showcasing meticulous care and attention to every detail. A two-car attached garage, with one bay currently set up as a workshop, complements the property, along with two immaculate pole buildings offering abundant storage or hobby space. Step outside to enjoy over 1, 300 square feet of poured patio, ideal for entertaining or simply relaxing while taking in peaceful views of the Cedar River. For guests or additional accommodations, the property includes three RV hookups, each with power and water access. Set well back from the road, this home offers exceptional privacy while remaining conveniently close to local amenities and recreation opportunities. Every inch of this property reflects quality, care, and pride of ownership. Whether youre looking for a permanent residence, seasonal retreat, or riverfront getaway, this turnkey estate delivers comfort, beauty, and seclusion in the heart of Michigans Upper Peninsula.